编号: 5937

在 Tarter 斜坡腳下購買的豪華公寓

Andorra - Tarter (El) | 公寓

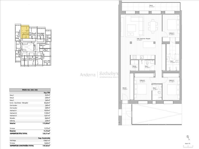
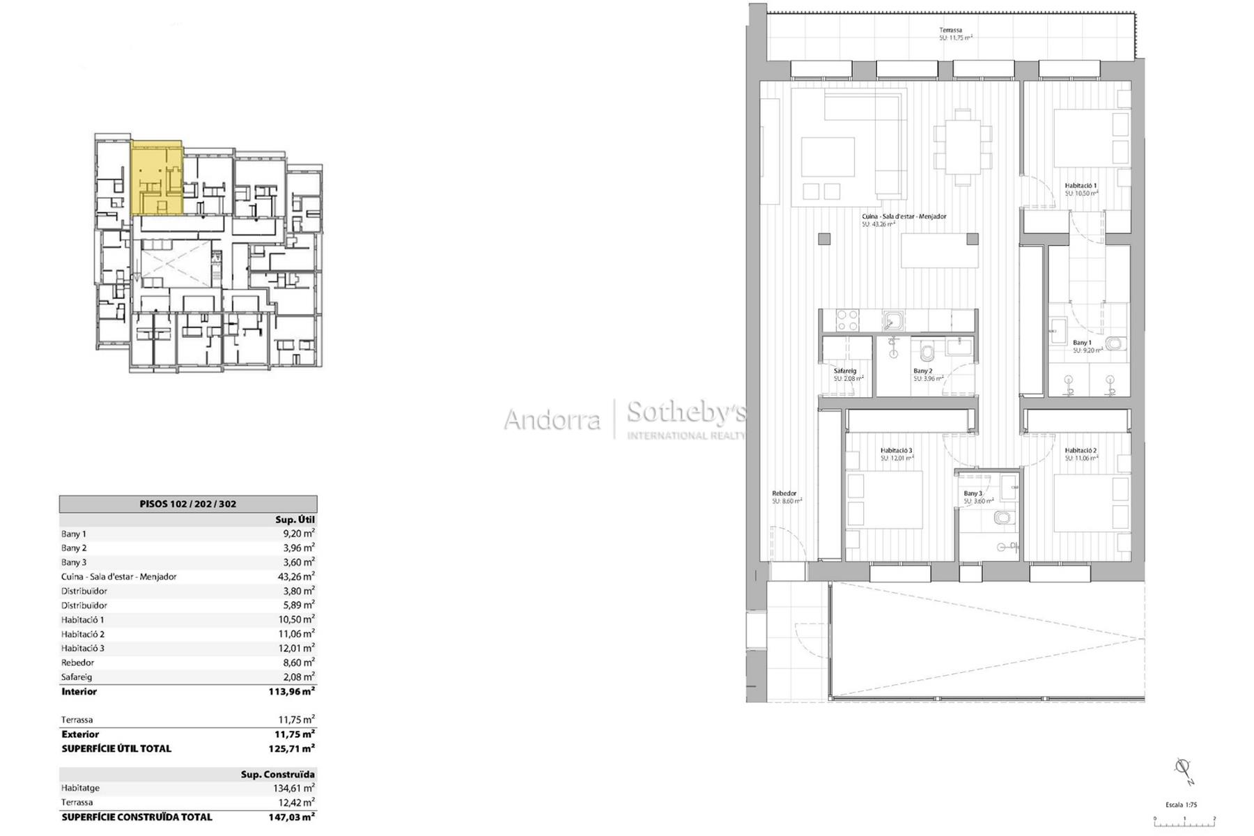
147 m2
睡房
3
浴室
2
价格
1.300.000 €

索取有关的更多信息 在 Tarter 斜坡腳下購買的豪華公寓

编号: 5937

| 5937

探索這座位於 El Tarter 的宏偉新作品。 該物業面積 147.03 平方米,提供現代化寬敞的空間,讓您盡情享受。 廚房與客廳融為一體,營造出舒適實用的氛圍。 從這裡您可以進入 12.42 平方米的美麗露台,欣賞美景。 該住宅擁有三間寬敞的雙人臥室,包括一間令人驚嘆的套房和兩間設施齊全的浴室,非常適合那些尋求舒適和時尚的人士。 建築物設有可停放兩輛車的私人車庫,可提供額外的舒適度,並讓您的車輛免受寒冷和雪的侵襲。 飯店配備高品質設施,包括節能 LED 照明、地暖和優雅的電壁爐。 此外,它還具有家庭自動化功能,可讓您透過智慧型手機輕鬆控制和管理家庭系統。 高品質的電器為您提供非凡的烹飪體驗,而輻射地板和瓷器則增添了一絲溫暖、精緻和耐用的感覺。 社區設有水療中心和社區休閒區,您可以在那裡享受游泳池和按摩浴缸,營造出幸福和放鬆的氛圍。 此外,一個帶有綠地的中央庭院完善了這個環境,提供了一個安靜和自然的空間。 不要錯過住在埃爾塔特這座美妙房產的機會。

特征

  • 在山脚下
  • 內置衣櫃
  • 陽光明媚
  • 露台
  • 冷气
  • 电加热
  • 电梯
  • 山景
  • 附近的公共交通工具
  • 绿地
  • 熱水
  • консьерж
  • 洗衣店

能量等級 A

我们找到什么?

不到 5km

  • Ransol 1.3 km
  • Incles 1.3 km
  • Aldosa (L' ) (Canillo) 2.4 km
  • Soldeu 3.0 km

不到 10km

  • Canillo 5.4 km
  • Prats 6.6 km
  • Forn (El) 8.2 km

距离首都

  • Escaldes-Engordany 15.5 km
  • Andorra la Vella 16.6 km

索取有关的更多信息 在 Tarter 斜坡腳下購買的豪華公寓

编号: 5937