编号: 5965
在塔特山坡腳下購買的新豪華公寓
Andorra - Tarter (El) | 公寓
区
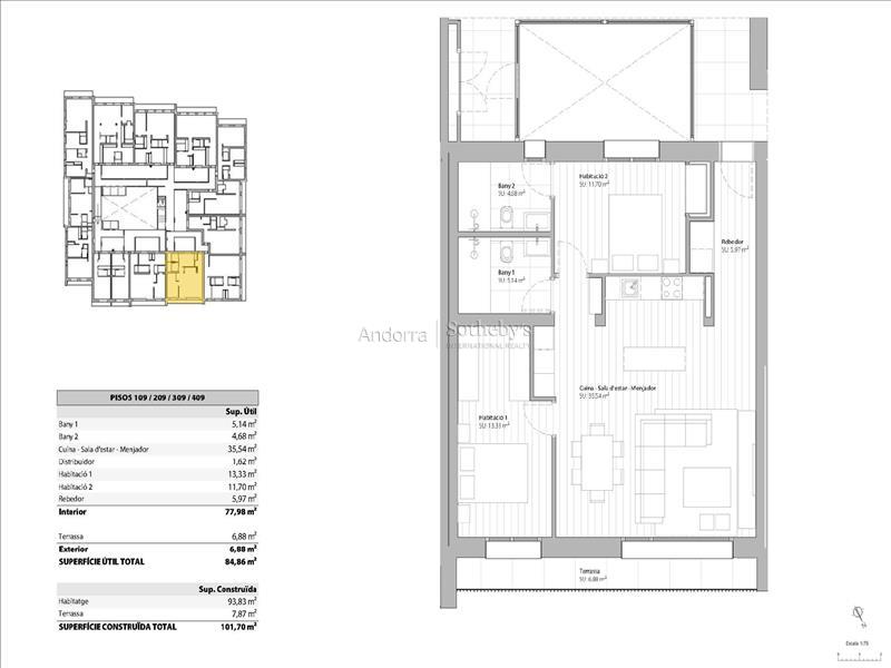
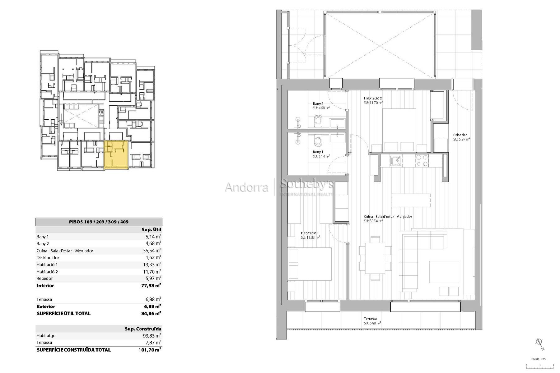
101 m2
睡房
2
浴室
2
价格
900.000 €
| 5965
探索這座位於 El Tarter 的宏偉新作品。 該物業面積為 101.81 平方米,提供現代而寬敞的空間,供您盡情享受。 廚房與客廳融為一體,營造出舒適實用的氛圍。 從這裡您可以進入 7.87 平方米的迷人露台,欣賞美景。 該住宅設有兩間寬敞的雙人臥室,包括一間令人驚嘆的套房和兩間設施齊全的浴室,非常適合那些尋求舒適和時尚的人士。 建築物設有可停放兩輛車的私人車庫,可提供額外的舒適度,並讓您的車輛免受寒冷和雪的侵襲。 飯店配備高品質設施,包括節能 LED 照明、地暖和優雅的電壁爐。 此外,它還具有家庭自動化功能,可讓您透過智慧型手機輕鬆控制和管理家庭系統。 高品質的電器為您提供非凡的烹飪體驗,而輻射地板和瓷器則增添了一絲溫暖、精緻和耐用的感覺。 社區設有水療中心和社區休閒區,您可以在那裡享受游泳池和按摩浴缸,營造出幸福和放鬆的氛圍。 此外,一個帶有綠地的中央庭院完善了這個環境,提供了一個安靜和自然的空間。 不要錯過住在埃爾塔特這座美妙房產的機會。特征
- 在山脚下
- 內置衣櫃
- 陽光明媚
- 露台
- 电加热
- 停车处
- 电梯
- 山景
- 附近的公共交通工具
- 绿地
- 熱水
- 儲存室
- консьерж

我们找到什么?
不到 5km
- Ransol 1.3 km
- Incles 1.3 km
- Aldosa (L' ) (Canillo) 2.4 km
- Soldeu 3.0 km
不到 10km
- Canillo 5.4 km
- Prats 6.6 km
- Forn (El) 8.2 km
距离首都
- Escaldes-Engordany 15.5 km
- Andorra la Vella 16.6 km
索取有关的更多信息 在塔特山坡腳下購買的新豪華公寓
编号: 5965